Design Proposal
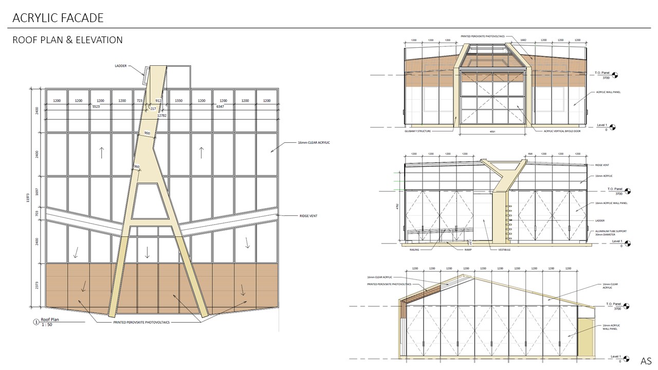
After conducting rapid prototyping and exploring countless options for the envelope proposal, the team moved forward with an acrylic envelope for our final proposal of the project. Learning from designing full scale modules of our external glazing systems connections and framing, acrylic not only made sense from a framing and manufacturing standpoint, but was an extreme effective cost saving solution when compared to the previous proposals utilizing ETFE membrane or polycarbonate. The acrylic system takes advantage of several strategies investigated during the rapid prototyping process, including the aforementioned ridge vent, and negative pressure flaps that allow the structure to breathe. The full proposal utilizes a multi-layer wall assembly, which required the team a significant amount of coordinating between different building systems in order to keep the proposal as minimal, cost effective, and as efficient as possible. Starting from the interior, the primary structure of the Y-House accommodates a structural bamboo known as ‘Glubam’. Composed of sheets of bamboo layered perpendicularly on top of one another, the crossing/layering of the grain allows for considerable tensile and compression capabilities. In addition to structural rigidity, the bamboo is sourced directly from within China, reducing production cost, C02 emissions of transportation of the material, and provides the building with passive carbon sequestering capabilities.





























